Charmante Villa im istrischen Stil
Beschreibung:
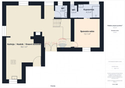
Diese attraktive Villa befindet sich in einer ländlichen Umgebung und liegt am Rand eines kleinen Ortschafts zwischen Savicenta und Vodnjan. Die Lage bietet Ihnen den Flair der Landidylle und Privatsphäre.Das Erdgeschoss besteht aus einem offenen Wohnzimmer mit Kamin, einer voll ausgestatteten Küche und einem Esszimmer, das mit dem Außenbereich verbunden ist. Darüberhinaus gibt es auf dieser Etage ein Schlafzimmer mit eigenem Bad und ein Gäste-WC.
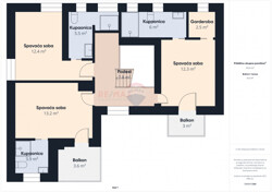
Im Obergeschoss befinden sich drei weitere Schlafzimmer, jedes mit eigenem Bad, zwei davon mit eigenem Balkon. Hier genießen Sie einen herrlichem Blick auf die grüne Umgebung und wunderschöne Sonnenuntergänge.
Im Außenbereich befindet sich eine große überdachte Terrasse mit Außenküche und Kamin-Grill. Direkt nebendran ist der 39 m² große Pool. Ein gemütliches Loungebereich Bereich befindet sich an der Ecke des Außenbereichs und bietet einen perfekten Rückzugsort vom Trubel am Pool.
Lagebeschreibung:
Die Entfernung zu den wunderschönen Stränden nahe dem berühmten Fischerdorf Fažana beträgt 15 Minuten, zur größten Stadt der Halbinsel, dem historischen Pula, sind es nur 20 Minuten. Die Perle der Adria, Rovinj mit ihren engen mittelalterlichen Gassen, ist in einer halben Stunde erreichbar, und die authentischen Städtchen Vodnjan und Savičenta erreichen Sie in etwa 10 Minuten.Ein Geschäft, ein Restaurant und ein Café sind fußläufig erreichbar.
Ausstattung:
Energieausweis:
- Baujahr:
- 2019
Ausstattungsbeschreibung:
Das Haus wird touristisch vermietet und steht möbliert zur Vermietung. Das Heizen und Kühlen erfolgt mittels Klimaanlagen.Sonstige Angaben:
Alle Angaben ohne Gewähr. Der Energieausweis ist in Vorbereitung. 74-618Sie wollen mehr erfahren?
Wenn Sie uns eine Nachricht über das Kontaktformular senden, melden wir uns schnellstmöglich bei Ihnen:


























