Neubau: Moderne Villa mit Pool in idyllischer Lage
Beschreibung:
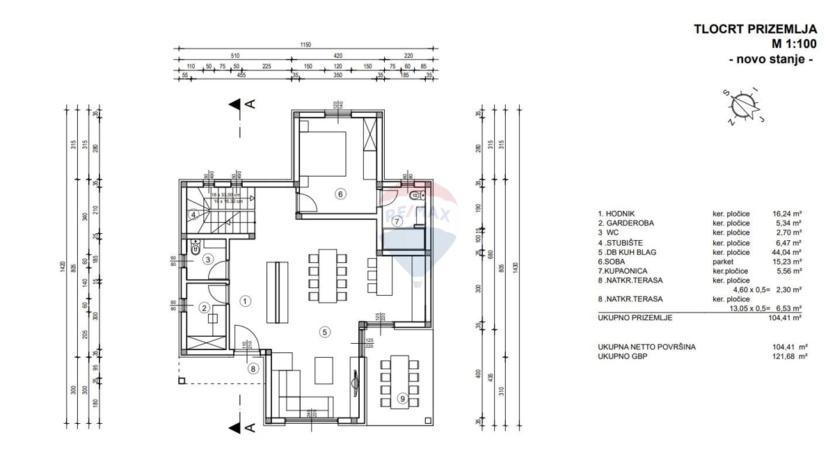
Idyllisch gelegen bietet dieser Neubau Ihnen absolute Ruhe und Privatsphäre auf der wunderschönen Insel Krk. Die Fertigstellung des Hauses ist für Juni 2023 vorgesehen.Das Erdgeschoss wird mit einem Schlafzimmer mit eigenem Badezimmer, einer Gardarobe, einem Gäste-WC, einem offenem Wohn-Ess-Bereich mit Küche ausgestattet.
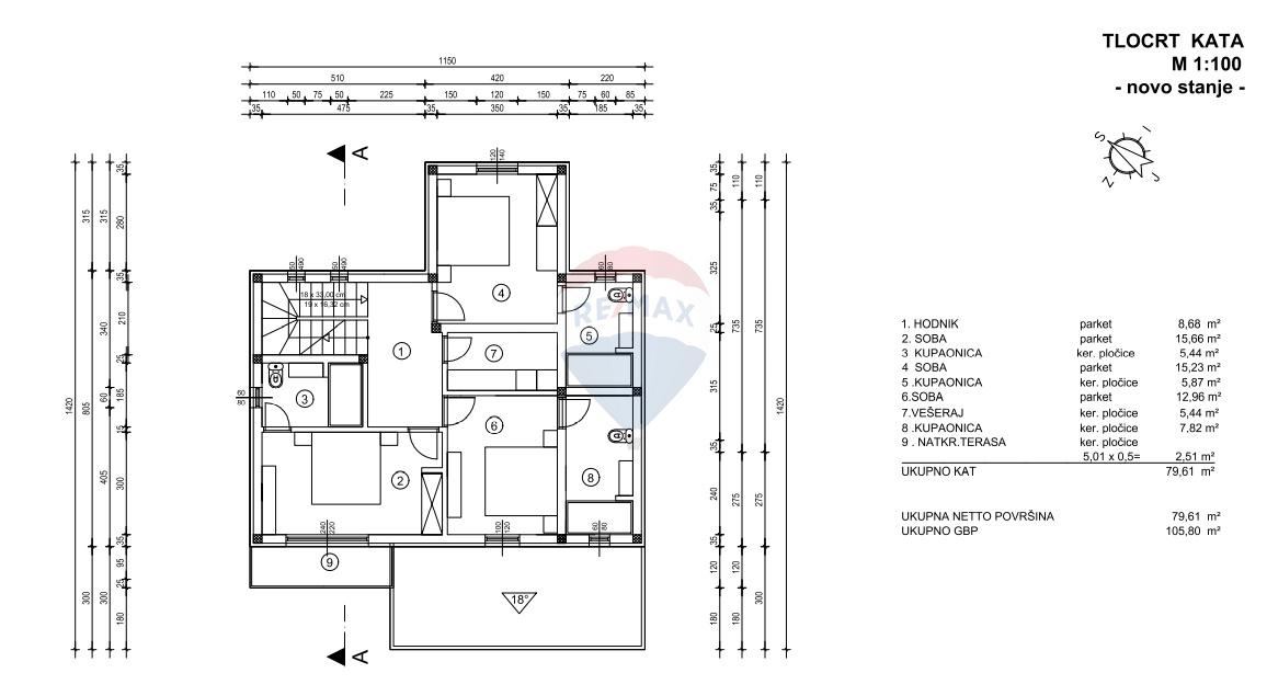
Im Obergeschoss befinden sich drei Schlafzimmer, jedes mit eigenem Badezimmer und einem Hauswirtschaftsraum. Ein Schlafzimmer verfügt über einen Balkon.
Der Außenbereich bietet einen gepflegten Garten mit einem 32m2 großem, beheizten Pool mit Sonnendeck und einem Grillplatz. Das Grundstück bietet Parkmöglichkeiten für mehrere Fahrzeuge.
Der Kauf dieses Neubaus ist von der Grunderwerbssteuer befreit!
Lagebeschreibung:
Insel Krk, Kras, ca 6 km vom Meer entfernt, ca. 13 km zur Inselhauptstadt Krk, ca. 30 km zum berühmten Strand „Baska“, ca. 20km bis zum FestlandAusstattung:
Energieausweis:
- Baujahr:
- 2023
Ausstattungsbeschreibung:
Die Villa ist mit hochwertigen Materialien ausgestattet, ist klimatisiert und verfügt über eine Fußbodenheizung und Warmwasser mittels Wärmepumpe.Sonstige Angaben:
Alle Angaben ohne Gewähr. Der Energieausweis ist in VorbereitungDer Kauf dieses Neubaus ist von der Grunderwerbssteuer befreit!
03-1212
Sie wollen mehr erfahren?
Wenn Sie uns eine Nachricht über das Kontaktformular senden, melden wir uns schnellstmöglich bei Ihnen: