Bezauberndes, denkmalgeschütztes Haus im Herzen von Mindelheim
Beschreibung:
Zum Verkauf steht ein bezauberndes, denkmalgeschütztes Haus im Herzen der historischen Altstadt von Mindelheim, einer lebendigen und zugleich charmanten Stadt im malerischen Unterallgäu.Historie und Nutzung:
Die ältesten Balken des Hauses stammen, anhand einer dendrochronologischen Untersuchung nachgewiesen, aus dem Jahr 1744.
Der ehemalige Gasthof Rappen kann – den Unterlagen des Mindelheimer Stadtarchivs zufolge – auf eine abwechslungsreiche Gesichte zurückblicken. Auch Bier wurde schon in seinen Gemäuern gebraut und zuletzt ausgeschenkt. Das Haus befindet sich direkt vor der Sankt Silvester Kirche und strahlt durch seine 3 Giebel und den romantisch-südländischen Innenhof ein besonderes Flair aus.
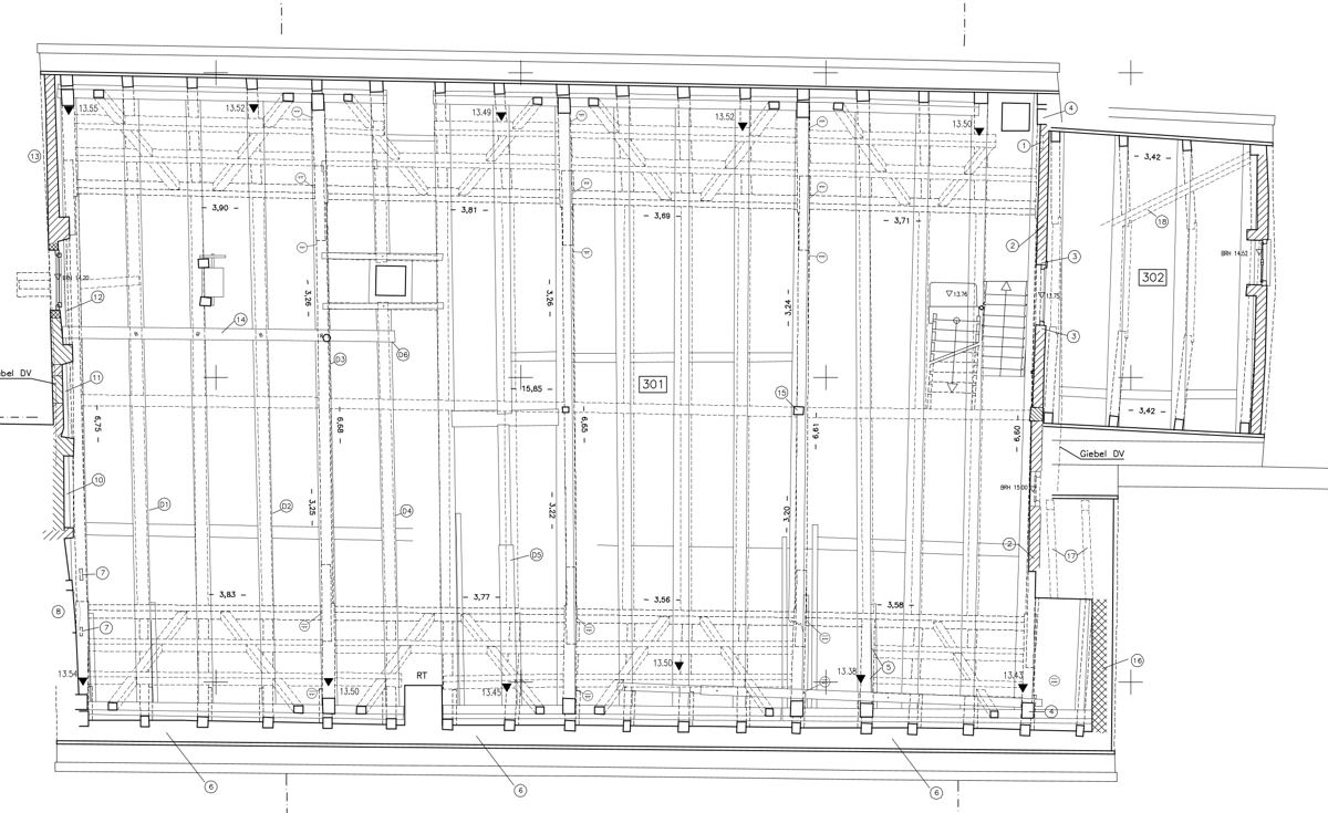
Im Erdgeschoss, ca. 172 m², befinden sich ein großer Gastraum und 4 Nebenräume. Über den Flur gelangt man in östlicher Richtung in den bezaubernden Innenhof – einem Ort zum bewussten Einatmen unter freiem Himmel, von der Sonne geküsst, vom Leben verwöhnt.
Das Haus ist teilunterkellert, auf dem Weg dorthin findet man auf halber Höhe einen historischen Gewölberaum, der einzigartige Phantasien für die zukünftige Nutzung bereithält.
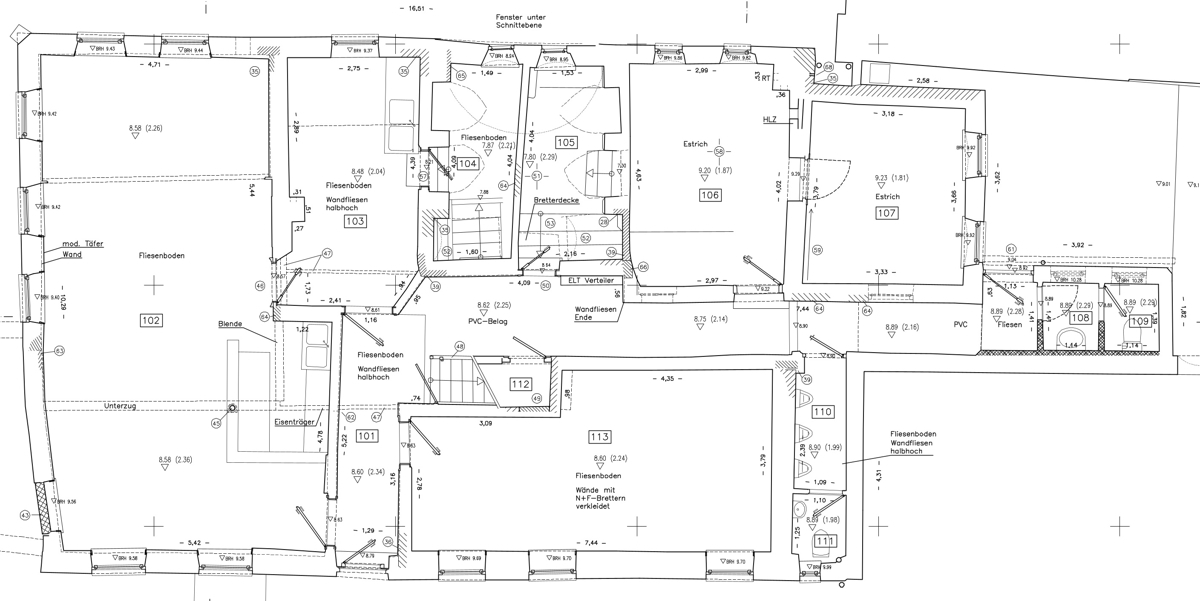
Das Obergeschoß, ca. 184 m², wurde bewohnt. Es untergliedert sich in 7 Räume.
Hier könnte man zukünftig wohnen oder arbeiten – oder beides.
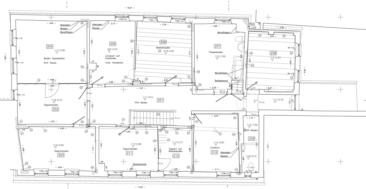
Der gesamte Dachbereich kann um weitere 150 m² ausgebaut und genutzt werden. Hier wurde im Jahr 2019 der historische Dachstuhl erneuert und saniert. Die Ausgestaltung mit Dachgauben in zwei Reihen ist grundsätzlich möglich. Das Dach wurde mit Biberschwänzen neu eingedeckt und mit einer Steico-Universal-dry-Aufdachsparrendämmung (60mm) ausgestattet. Die Anschlüsse, Dachrinnen, Dachrohre und die Schornsteinverwahrungen und Verkleidungen wurden komplett mit verzinktem Stahlblech erneuert.
Das Haus freut sich auf die weitere Gestaltung und das neu einziehende Leben.
Lagebeschreibung:
Mindelheim bezaubert nicht nur durch seine historische Atmosphäre, sondern ebenso durch die landschaftliche Schönheit der sanften Hügel des Allgäus, die das Gefühl von Urlaub wecken. Wiesen, Wälder und naturbelassene Bachläufe laden in der Umgebung zum Verweilen und Entspannen ein.Die nahe der Stadt, ca.1.500 Meter entfernte, etwas höher gelegene Mindelburg ist ein attraktiver Ausflugsort von nationaler Bedeutung und wird nach der Sanierung nach Einschätzung von Historikern zu einem Touristen-Magnet. Bereits jetzt erwartet den Besucher eine eindrucksvolle Aussicht auf die Stadt und das Mindeltal.
Der Landkreis Unterallgäu ist eine wirtschaftlich starke Region, in der sich viele regionale Unternehmen sowie Global Player angesiedelt haben. Die Stadt Mindelheim ist durch das hiesige Gewerbe wirtschaftlich sehr gut aufgestellt.
Innerhalb der Stadt selbst erwartet Sie ein Flair von Dolce Vita, das zum entspannten Flanieren und Genießen einlädt. Zahlreiche charmante Cafés, Restaurants und kleine, individuelle Geschäfte verleihen Mindelheim eine außergewöhnlich lebendige Atmosphäre, die Sie sonst nur in südlicheren Gefilden vermuten würden.
Fußläufig erreichen Sie bereits nach 100 Metern die stilvoll gestaltete, gemütliche Fußgängerzone. Der legendäre Marienplatz, Mittelpunkt des städtischen Lebens, liegt lediglich 170 Meter entfernt. Hier findet zweimal wöchentlich, dienstags und samstags, ein lebhafter Wochenmarkt statt, auf dem regionale, kulinarische Köstlichkeiten angeboten werden. Der Marienplatz ist ein Ort, an dem sich Freunde treffen, zusammen feiern und das Leben genießen.
Durch die exzellente Verkehrsanbindung über die Autobahn A96 erreichen Sie München, Ulm, Lindau oder die Alpenregion rund um Oberstdorf jeweils in knapp einer Stunde. Augsburg liegt sogar nur eine halbe Stunde entfernt.
Erleben Sie in diesem besonderen Haus das einzigartige Zusammenspiel aus historischem Ambiente, städtischem Lebensgefühl und naturnaher Erholung!
Ausstattung:
Energieausweis:
- Baujahr:
- 1750
- Energieausweis:
- es besteht keine Pflicht!
Sonstige Angaben:
Da es sich hier um ein denkmalgeschütztes Haus handelt, sind Sonderabschreibungen, AfA, möglich. So können der Kaufpreis des Gebäudes und die Renovierungs- und Sanierungskosten, nach erfolgter Abstimmung mit den Denkmalbehörden, sofort über 12 Jahre steuerlich geltend gemacht werden.Auch aus anderen öffentlichen Fördertöpfen kann geschöpft werden, so z.B. aus der Städtebauförderung über die Stadt Mindelheim als auch über Mittel der Denkmalpflege (Landkreis, Bezirk usw.).
Ein Energieausweis ist nicht erforderlich, da es sich hier um ein historisches und denkmalgeschütztes Gebäude handelt.
Sie wollen mehr erfahren?
Wenn Sie uns eine Nachricht über das Kontaktformular senden, melden wir uns schnellstmöglich bei Ihnen:

 
										











