Unternehmervilla im Dornröschenschlaf am Rand der Altstadt von Weißenhorn
Beschreibung:
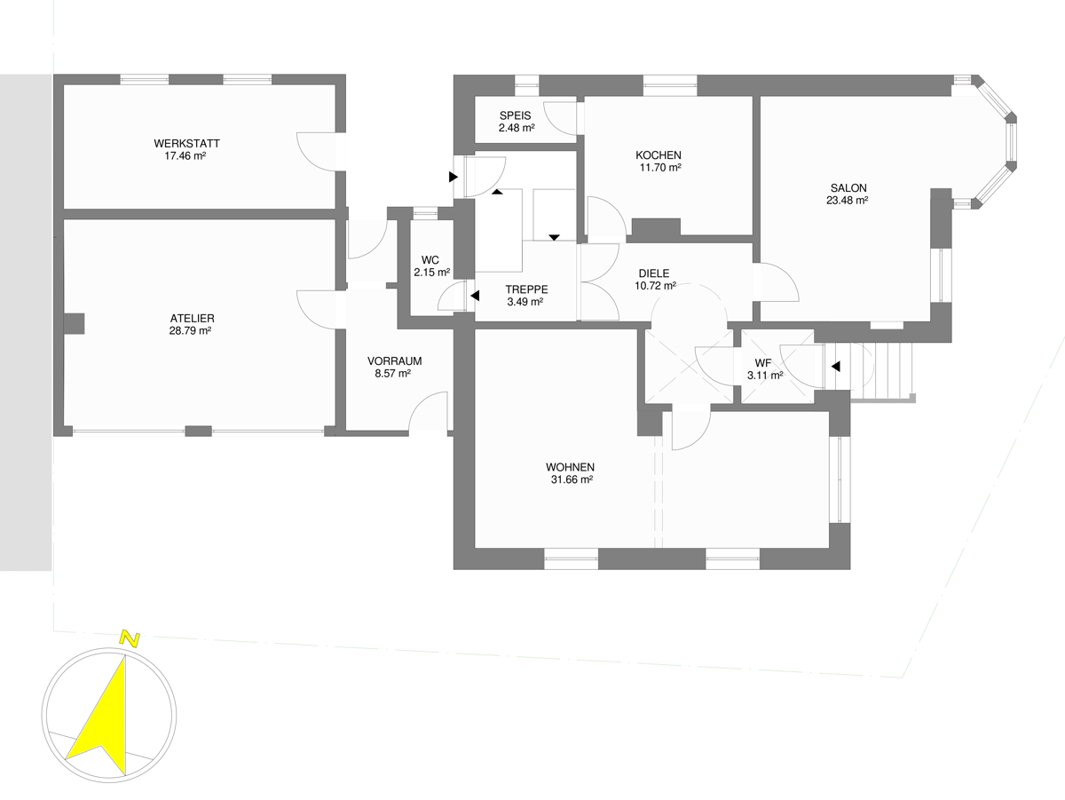
Diese beeindruckende Unternehmervilla aus den 1920er Jahren befindet sich in einem Dornröschenschlaf und wartet darauf, mit etwas Vision und handwerklichem Geschick zu neuem Leben erweckt zu werden. Das Gebäude bietet eine beachtliche Substanz und ein großes Potenzial für Liebhaber historischer Architektur und anspruchsvoller Sanierungsprojekte.Die Villa erstreckt sich über insgesamt ca. 230 m² Wohnfläche, verteilt auf Erdgeschoss, Obergeschoss und Dachgeschoss, dazu etwa 46 m² Nutzfläche in einer ehemaligen Garage mit anschließender Werkstatt. Diese Fläche eignet sich hervorragend für die Umnutzung als Atelier, Büroräume oder ähnliche gewerbliche Zwecke und hat eigene Zugänge. Zudem bieten rund 80 m² im Keller zusätzlichen Raum, darunter zwei Gewölbekeller, die den historischen Charme dieses Gebäudes unterstreichen.
Im Inneren beeindrucken hohe, großzügige Räume mit Details, die das Herz eines jeden Liebhabers historischer Architektur höherschlagen lassen. Besonders hervorzuheben sind das wunderschöne Eichenparkett im Fischgrät, die eindrucksvolle Treppenanlage aus Eiche und der teils erhaltene Art-déco-Stuck. Diese einzigartigen Merkmale spiegeln die ursprüngliche Eleganz der Villa wider und bieten eine hervorragende Grundlage für eine stilvolle Renovierung.
Das Haus liegt in unmittelbarer Nähe zum Bahnhof Weißenhorn und nur wenige hundert Meter vom Stadtzentrum entfernt. Durch die Lage im Gewerbegebiet ist eine gewerbliche Teilnutzung vorgesehen.
Ein Streifen von ca. 10 m zwischen dem Grundstück und der Straße gehört der Stadt Weißenhorn. Ein Nutzungs- und Überfahrtsrecht ist im Rahmen eines Genehmigungsverfahrens durch den neuen Eigentümer bei der Stadt zu beantragen.
Das Haus wird im digitalen Angebotsverfahren verkauft, mit einer Kaufpreiserwartung von 275.000,- €.
Anfragen bitte nur über das Kontaktformular.
Ausstattung:
- Warmwasser enthalten
Energieausweis:
- A+
- A
- B
- C
- D
- E
- F
- G
- H
- Baujahr:
- 1924
- Endenergiebedarf:
- 391 kWh/(m²a)
- Energieausweis:
- Bedarfsausweis
- Energieeffizienzklasse:
- H
- Energieausweis gültig bis:
- 15.04.2035
- Baujahr lt. Energieausweis:
- 1924
- wesentlicher Energieträger:
- Kohle
Sonstige Angaben:
Energie-Bedarfsausweis, H, 391 kWh/(m²a), Bj 1924, Holz, Kohle, StromSie wollen mehr erfahren?
Wenn Sie uns eine Nachricht über das Kontaktformular senden, melden wir uns schnellstmöglich bei Ihnen:























