Neubau: Moderne Villa mit fantastischem Meerblick
Beschreibung:
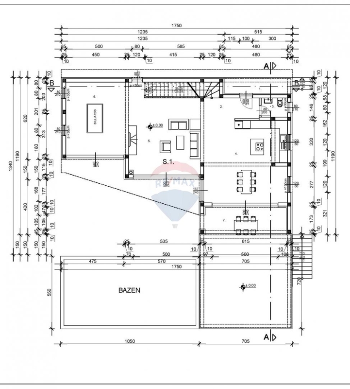
Wir verkaufen eine im Bau befindliche Villa eines bekannten Investors, gelegen in Crikvenica in ruhiger Lage, mit schönem Panoramablick aufs Meer.Im Erdgeschoss erwarten Sie einladende Tagesräume – eine top augestattete Küche mit Kochinsel, angeschloss ans Esszimmer, ein großzügiges Wohnzimmer und ein Hobbyraum. Aus allen diesen Räumen haben Sie Zugang zum überdachten Außenbereich und Pool.
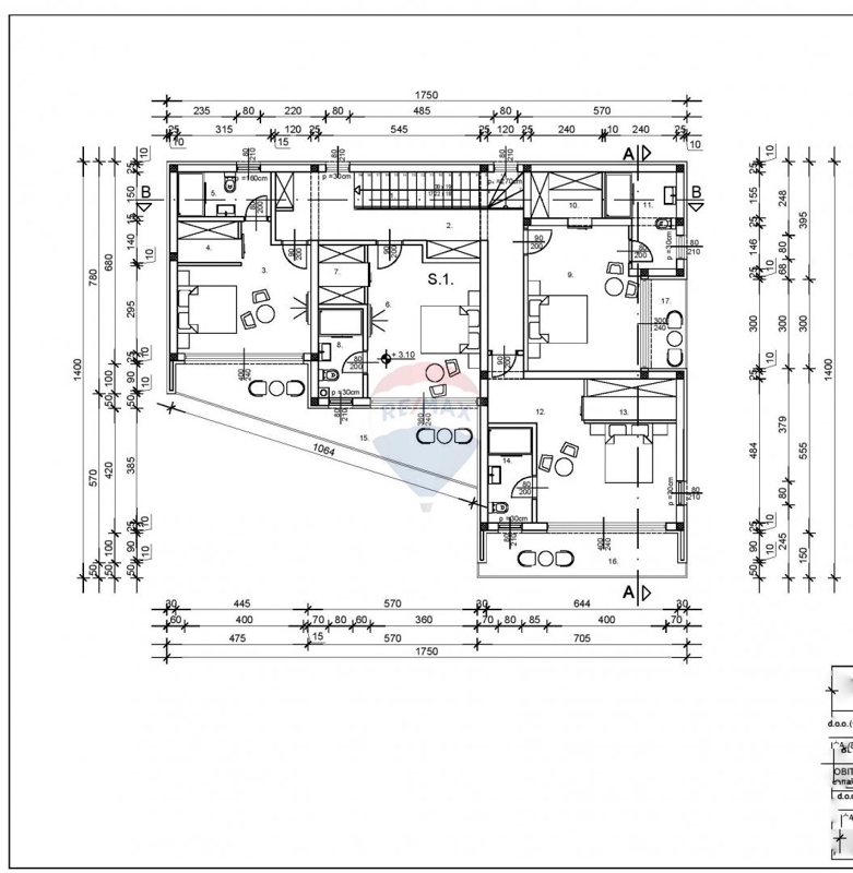
Im Obergschoss befinden sich vier Schlafzimmer mit jeweils einem Bad und begehbarem Kleiderschrank. Drei Schlafzimmer haben einen Ausgang auf die Loggia, mit einem schönen Meerblick.
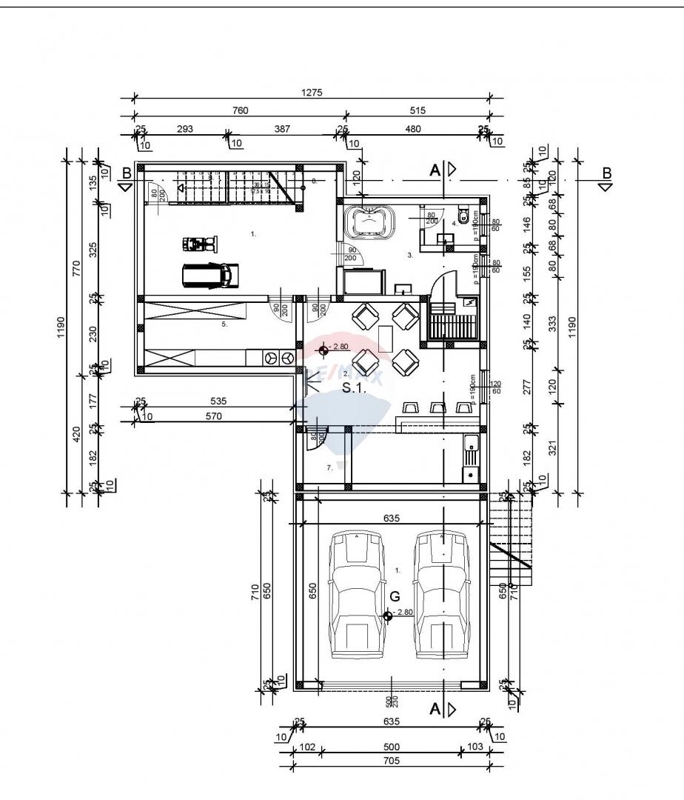
Im Untergeschoss gibt es einen Fitnessraum, einen Hobbyraum, einen Wellness-Raum, eine Toilette, einen Vorraum, ein Schlafzimmer und eine zusätzliche Garage von 41 m².
Geplanter Fertigstellungstermin 06/2023.
Es besteht die Möglichkeit kleine Änderungen am Projekt vorzunehmen, je nach Wünschen und Bedürfnissen des Käufers.
Das Haus wird über Firma verkauft. Bei dem angebotenen Verkaufspreis handelt es sich um netto Preis. Der Käufer zahlt keine Immobilienerwerbsteuer.
Lagebeschreibung:
Die Villa liegt am Ortsrand von Crikvenica, in einer familiären Umgebung. Die Ortsmitte sowie die schönen Strände sind nur 1 km entfernt.Ausstattung:
Energieausweis:
- Baujahr:
- 2023
Ausstattungsbeschreibung:
Die Villa ist aus hochwertigen Materialien gebaut und ausgestattet mit Alufenster und -türen, Fußbodenheizung, Smart-Home-System, Alarmanlage, Schwimmbad, Jacuzzi und Sauna.Geplanter Fertigstellungstermin 06/2023.
Sonstige Angaben:
Alle Angaben ohne Gewähr. Der Energieausweis ist in Vorbereitung. 10-352Das Haus wird über Firma verkauft. Bei dem angebotenen Verkaufspreis handelt es sich um netto Preis. Der Käufer zahlt keine Immobilienerwerbsteuer.
Sie wollen mehr erfahren?
Wenn Sie uns eine Nachricht über das Kontaktformular senden, melden wir uns schnellstmöglich bei Ihnen:












